Visualizza foto
Coverciano, Firenze Mappa
Rif. A07 Coverciano pressi, Via di Montalbano, immerso nel verde, si propone in vendita appartamento in signorile villa storica del ‘400 completamente adornata da giardino all’italiana e parco condominiale. L’appartamento, di circa 150 mq lordi,...
Visualizza foto
Coverciano, Firenze Mappa
...auto su richiesta. Gli appartamenti verranno consegnati con rifiniture di lusso, chiavi in mano. Consegna prevista - 30 Ottobre 2025 Immerso nella fresca campagna fiorentina, il comune di Fiesole si trova a soli pochi chilometri dal centro di Firenze...
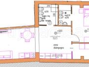
2 foto
Argingrosso, Firenze Mappa
...te e locazioni residenziali, commerciali, aziendali in Firenze e provincia; Valutazioni e stime professionali, servizi catastali, preventivi notai e preventivi Mutui( associata FIAIP - auxilia).Alcune foto talvolta potrebbero non rappresentare perfet...
Visualizza foto
San Niccolò - Porta Romana, Firenze Mappa
...padronale lussuosa completamente ristrutturata, ridisegnata da Barthel e circondata da un giardino di totali circa 2.000 mq.; a pochi minuti dal centro città con una bellissima vista su Firenze, sulle colline circostanti e sulla Torre di Bellosguardo...
Visualizza foto
Brozzi - Quaracchi, Firenze Mappa
...TERRATETTO A SCHIERA di quattro vani, disposto su 2 livelli oltre SOTTOTETTO MANSARDATO (Hmax: 1,60mt) utilizzabile come studio, magazzino o dispensa, composto da grande soggiorno d'ingresso con CAMINO, cucina abitabile, camera, camerina, DOPPI...