5 foto
Praia a Mare Mappa
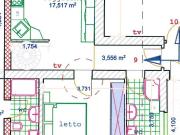
...Calabria nel golfo di Policastro, 1,5 km dal mare, 16 km da Maratea, 23 km da Sapri, appartamento indipendente terra tetto di 110 mq in villa bifamiliare. Lappartamento è composto da piano terra: sa...
Visualizza foto
Terrasini
...ante di Terrasini, a pochi passi dal centro e dalle incantevoli spiagge della zona, proponiamo in vendita una raffinata struttura ricettiva completamente ristrutturata. Questa propriet è situata al secondo e terzo piano di un edificio con doppia espo...
5 foto
Praia a Mare Mappa
...Immobile su due livelli con 3 Matrimoniali Last Minute Nuovo interno 9 Residence Miramare interno 9 L’immobile composto da piano terra, primo, secondo e terzo è situato in posizione centrale e strate...
5 foto
Praia a Mare Mappa
...Residence Miramare L’immobile composto da piano terra, primo, secondo e terzo è situato in posizione centrale e strategica, a soli 50 metri dalla stazione ferroviaria e a 200 metri dal lungomare. Il...
5 foto
Praia a Mare Mappa
...Proponiamo in vendita a Praia a Mare in contesto residenziale appartamento spazioso sito al terzo piano in palazzina recintata, composto da soggiorno luminoso con balcone, cucina abitabile con uscita...
5 foto
Praia a Mare Mappa
...Dimensione Casa Costruzioni azienda leader nel settore del mercato immobiliare, propone in vendita, grazioso appartamento, in ottimo stato, al centro di Praia a Mare, nelle immediate vicinanze alle...
5 foto
Praia a Mare Mappa
...Vendesi appartamento in zona residenziale e tranquilla a soli 500 metri dal centro e 700 dal mare, la zona è circondata di alberi, nei pressi dell abitazione sono presenti attività commerciali (con...
Visualizza foto
Palermo
...Appartamento Ristrutturato e Arredato in Vendita ? Vicolo Palmentieri, Palermo Nel cuore del centro storico di Palermo, a pochi metri dal maestoso Teatro Massimo e da Via Roma, proponiamo in vendita un delizioso appartamento ristrutturato, situato in...